Kitchen Wall Cabinet Height Uk : The high point would then be 150+25+720=895 and depending on how the kitchen is laid out a gap of 25mm above the plinths at this point may not be visible.

Kitchen Wall Cabinet Height Uk : The high point would then be 150+25+720=895 and depending on how the kitchen is laid out a gap of 25mm above the plinths at this point may not be visible.. Factor in the height of ceilings and trim when determining cabinet size and position. Wall cabinets are usually 300 mm deep and height can vary, with most wall cabinets being either 760 or 990 mm tall. The width of the kitchen cabinets is usually a multiple of 10 or 15 cm, and the height of the base units will reach 91 cm including the adjustable leg, plus the addition of the worktop which can be either 2cm, 3cm, 4cm thick. Standard height of wall cupboard: Standard height of kitchen unit:

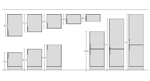
The base unit sits on the legs and is 720mm in height. Standard widths of kitchen units: Kitchen cabinets are usually 60 cm deep and have widths that are multiples of 10 cm or 15 cm. With regard to appliances and wall cabinets, the relationship between the refrigerator and microwave oven are. Shop cabinets and other security products at toolstation.

The Complete Guide To Standard Kitchen Cabinet Dimensions
The Complete Guide To Standard Kitchen Cabinet Dimensions from kitchinsider.com
Standard widths of kitchen units: They can be easily adjusted to allow cabinets to be levelled. This measurement includes 150mm to allow for plinths and legs. Standard kitchen cabinet height wall painting dimensions sizes upper cabinets 10 essential kitchen dimensions you need to know houzz uk fit kitchen wall units diy guide to hanging cupboards doctor fit kitchen wall units diy guide to hanging cupboards doctor the complete guide to standard kitchen cabinet dimensions the basics of kitchen design tenderfoot. Get more from your kitchen when you choose considerate kitchen cabinets here. Our kitchen wall units feature a 1.9cm service void so any pipe work can be neatly hidden behind the back panel. Wall cabinets are usually 300 mm deep and height can vary, with most wall cabinets being either 760 or 990 mm tall. Larder units are usually 30 cm wide and appliance units 60 cm wide.

These cabinets fit between the base cabinets and the ceiling.

Typically, wall cabinets are available in 30, 36, and 42. Kitchen base and wall units and installation height by nomorenails » wed sep 11, 2013 5:13 pm last post by proptech thu sep 12, 2013 9:50 pm replies 2 views 3086 Our kitchen wall unit range meets european and uk gas regulations so that the gaps. Wall hung kitchen cabinets are a useful feature to any kitchen, they are excellent for storage and look great too. Choose from a variety of kitchen cabinets including wall & base cabinets, corner cabinets and larder units. Our kitchen wall units feature a 1.9cm service void so any pipe work can be neatly hidden behind the back panel. Standard widths of kitchen units: Get more from your kitchen when you choose considerate kitchen cabinets here. Height tends to be limited since the cabinets need to fit between the counter and the ceiling. 30 tall cabinets will top align at 84 height, 36 height cabinets will top align at 90 h, and 42 h cabinets will top align at 96 h. Create your perfect kitchen and choose from our ide selection of base units, wall units and larder units. 150mm plinth (kickboard) 720mm base cabinet Wall units are fitted with adjustable rear hanging brackets.

30 tall cabinets will top align at 84 height, 36 height cabinets will top align at 90 h, and 42 h cabinets will top align at 96 h. Get more from your kitchen when you choose considerate kitchen cabinets here. The standard kitchen worktop height is 910mm from the floor to the top of the worktop. Height tends to be limited since the cabinets need to fit between the counter and the ceiling. In standard kitchens, the wall cabinets are typically 30 or 36 inches tall, with the space above enclosed by soffits.

Kitchen Cabinet Carcase Specification
Kitchen Cabinet Carcase Specification from www.jblkitchens.co.uk
But 90cm is just an average. Our kitchen wall unit range meets european and uk gas regulations so that the gaps. The high point would then be 150+25+720=895 and depending on how the kitchen is laid out a gap of 25mm above the plinths at this point may not be visible. Remove cover caps on inside of cabinet. Standard widths of kitchen wall cupboards: Common wall cabinet heights are 12, 36, and 42 inches. The standard heights needed from the base unit fitting are as follows, to achieve the 490mm gap to the base of the wall units. Standard height of kitchen unit:

In standard kitchens, the wall cabinets are typically 30 or 36 inches tall, with the space above enclosed by soffits.

A slightly newer trend is to have midi/studio height tall cabinets. Remove cover caps on inside of cabinet. Kitchen wall units (often be referred to as wall cabinets or wall carcasses) are, as per their name, hung on a wall! Our kitchen wall unit range meets european and uk gas regulations so that the gaps. This measurement includes 150mm to allow for plinths and legs. Huge range of high quality and affordable kitchen unit units. If you have more room to work with, why not include a kitchen island with cupboards for lots of extra storage space. 300mm single wall unit (low) height: Wall cabinet with shelves60x80 cm. Standard height of wall cupboard: This kitchen worktop height is made up of the following standard kitchen dimensions: Although 18 inches is a typical minimum height, kitchen cabinets can start much higher than this. In some kitchens the ceiling height or soffit height can limit the height of wall cabinets to the shorter 760 mm height.

Huge range of high quality and affordable kitchen unit units. Allow about 600 mm between kitchen worktops and the bottom of the kitchen wall units to give yourself enough room to work the standard height for kitchen base units is 870mm from the floor to the top of your base cabinets. Wall units are fitted with adjustable rear hanging brackets. Standard widths of kitchen wall cupboards: 300mm, 400mm, 500mm, 600m, 800mm, 1000mm, 1200mm.

3
3 from
The width of the kitchen cabinets is usually a multiple of 10 or 15 cm, and the height of the base units will reach 91 cm including the adjustable leg, plus the addition of the worktop which can be either 2cm, 3cm, 4cm thick. Common wall cabinet heights are 12, 36, and 42 inches. Although 18 inches is a typical minimum height, kitchen cabinets can start much higher than this. This sizing is illustrated by the base units shown below. Learn how to hang a wall cabinet with thi. Our kitchen wall units feature a 1.9cm service void so any pipe work can be neatly hidden behind the back panel. Cabinets are sold in standard heights of 30, 36, or 42 inches. A slightly newer trend is to have midi/studio height tall cabinets.

Drawer units are usually offered in a variety of widths.

Our attractive shaker style kitchen cabinet doors are ideal for replacing old kitchen doors, available in a range. If you have more room to work with, why not include a kitchen island with cupboards for lots of extra storage space. With an upper cabinet mounting height of 54. A standard worktop averages 90cm in height. This measurement includes 150mm to allow for plinths and legs. The legs of the base unit are 150mm. The base unit sits on the legs and is 720mm in height. Kitchen cabinets are usually 60 cm deep and have widths that are multiples of 10 cm or 15 cm. Standard height of wall cupboard: Standard height of kitchen unit: Allow about 600 mm between kitchen worktops and the bottom of the kitchen wall units to give yourself enough room to work the standard height for kitchen base units is 870mm from the floor to the top of your base cabinets. In standard kitchens, the wall cabinets are typically 30 or 36 inches tall, with the space above enclosed by soffits. Light grey oak 900mm x 450mm x 290mm ready assembled wall cabinet.

Allow about 600 mm between kitchen worktops and the bottom of the kitchen wall units to give yourself enough room to work the standard height for kitchen base units is 870mm from the floor to the top of your base cabinets kitchen wall cabinet height. But 90cm is just an average.

Posting Komentar

Lebih baru Lebih lama

Facebook